Lanpro is acting as a planning consultant to Barratt David Wilson, who are bringing forward a new hybrid planning application on Land West of their current Corinthian Place development, Burnham-on-Crouch, which deliver a residential-led, mixed-use development for up to 360 high-quality new homes across two phases. 

Phase 1 will deliver 170 homes, and Phase 2 will deliver up to 190 homes. This will include a proportion of affordable housing to help meet local needs as well as support the Council's future housing requirements. 

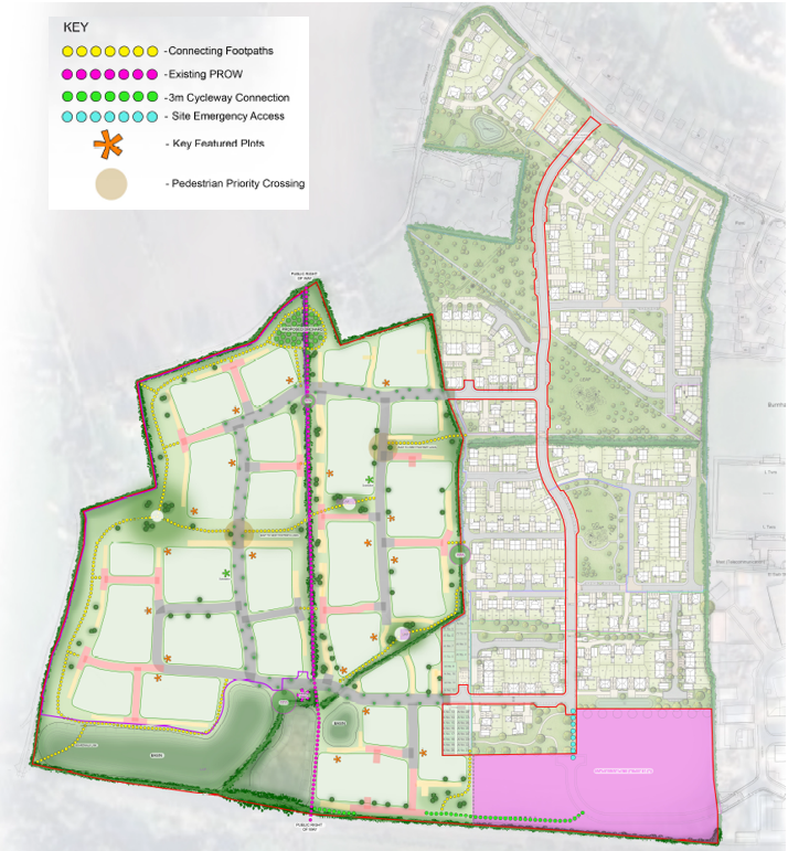
Alongside new homes, the proposals include retention of existing employment use allocation south of the Corinthian Place development. 

The proposals include significant landscaped public amenity spaces for future and existing residents to enjoy, as well as biodiversity enhancements. Connectivity has been prioritised throughout the development, with pedestrian and cycle links proposed between western and southern parcels. Further connections will be made into the existing Corinthian Place development which in turn provides access to Burnham-on-Crouch town centre. The existing Public Right of Way, which runs centrally across the two land parcels will be retained. 

Lanpro is acting as a planning consultant to Barratt David Wilson, who are bringing forward a new hybrid planning application on Land West of their current Corinthian Place development, Burnham-on-Crouch, which deliver a residential-led, mixed-use development for up to 360 high-quality new homes across two phases. 

Phase 1 will deliver 170 homes, and Phase 2 will deliver up to 190 homes. This will include a proportion of affordable housing to help meet local needs as well as support the Council's future housing requirements. 

Alongside new homes, the proposals include retention of existing employment use allocation south of the Corinthian Place development. 

The proposals include significant landscaped public amenity spaces for future and existing residents to enjoy, as well as biodiversity enhancements. Connectivity has been prioritised throughout the development, with pedestrian and cycle links proposed between western and southern parcels. Further connections will be made into the existing Corinthian Place development which in turn provides access to Burnham-on-Crouch town centre. The existing Public Right of Way, which runs centrally across the two land parcels will be retained. 

Barratt David Wilson Homes is part of the Barratt Redrow Group and has been building high-quality homes for over 50 years.

They are a 5* quality award winning homebuilder, meaning over 90% of their customers would recommend them to a friend. What’s more, it makes them the UK’s most recommended housebuilder for the 16 consecutive year - a record none of their competitors come close to matching.

Furthermore, they have also won more NHBC Pride in the Job Quality Awards than any other housebuilder.

Barratt David Wilson Homes is part of the Barratt Redrow Group and has been building high-quality homes for over 50 years.

They are a 5* quality award winning homebuilder, meaning over 90% of their customers would recommend them to a friend. What’s more, it makes them the UK’s most recommended housebuilder for the 16 consecutive year - a record none of their competitors come close to matching.

Furthermore, they have also won more NHBC Pride in the Job Quality Awards than any other housebuilder.

The Site extends to approximately 23.44 hectares (58 acres) and comprises agricultural fields that are in arable use. The Site is bound by residential properties and Creeksea Lane to the north; a development known as Corinthian Place, which also forms part of Strategic Growth Area S2, to the east; a railway line to the south, beyond which are a number of residential and non-residential properties and the Blackwater Estuary; and Ferry Road and Burnham-on-Crouch Golf Club to the west. Therefore, the Site is located is a sustainable location in the context of the District. 

The Site extends to approximately 23.44 hectares (58 acres) and comprises agricultural fields that are in arable use. The Site is bound by residential properties and Creeksea Lane to the north; a development known as Corinthian Place, which also forms part of Strategic Growth Area S2, to the east; a railway line to the south, beyond which are a number of residential and non-residential properties and the Blackwater Estuary; and Ferry Road and Burnham-on-Crouch Golf Club to the west. Therefore, the Site is located is a sustainable location in the context of the District. 

An indicative masterplan has been prepared and the development has been designed with the local community in mind. Reflecting the distinctive character of Corinthian Place, it will feature attractive architecture, high-quality materials and welcoming green spaces. The design aims to create a sense of continuity with the existing neighbourhood while adding new homes that residents can be proud of. 

Housing Mix and Design

The proposals include a variety of house types, sizes and tenures in order to widen opportunities of home ownership for first time buyers, families looking to move to bigger homes as well as those who wish to downsize and stay in the area. 

The homes that we will be providing includes a mix of 1-5 bedroom homes including bungalows and two-storey family homes, catering to a wide variety of housing needs. 

Barratt David Wilson Homes recognises the need for new affordable homes in Burnham-on-Crouch and the wider Maldon district. As such, 40% of the homes delivered will be affordable, comprising both social rent and shared ownership properties.

Land for Employment Use

As part of the proposal, the existing allocated employment land to the south of the Corinthian Place development will be retained. It will be easily accessible via safe, walkable routes and also via the existing vehicular access from Springfield Road.

Access and transport

The development is within walking distance of Burnham-on-Crouch, and its accessible location is complemented by plans for a walkable neighbourhood where pedestrians and cyclists are prioritised. Additionally, the walking and cycling routes proposed throughout the development will encourage active travel.

Access to the residential development will be from Endeavour Way, off Maldon Road, via two new vehicular routes. In addition, various pedestrian and cycle connections will be provided from the new development to surrounding routes.

Pedestrian and cycle connections within the retained employment land will link the proposed residential development to the wider network, providing access further east across the site and into Burnham-on-Crouch town centre via existing routes.

Sustainability 

The scheme is landscape-led with a priority of including widespread tree planting and biodiversity enhancements. 

Barratt David Wilson Homes is the nation’s leading national sustainable housebuilder. The development has been designed to be climate adaptable, and the homes will incorporate sustainable design features with a focus on energy and water efficiency. The dwellings will be highly energy efficient, adopting a fabric first approach and with a specification to meet latest building regulations and Future Homes Standards.

 

An indicative masterplan has been prepared and the development has been designed with the local community in mind. Reflecting the distinctive character of Corinthian Place, it will feature attractive architecture, high-quality materials and welcoming green spaces. The design aims to create a sense of continuity with the existing neighbourhood while adding new homes that residents can be proud of. 

Housing Mix and Design

The proposals include a variety of house types, sizes and tenures in order to widen opportunities of home ownership for first time buyers, families looking to move to bigger homes as well as those who wish to downsize and stay in the area. 

The homes that we will be providing includes a mix of 1-5 bedroom homes including bungalows and two-storey family homes, catering to a wide variety of housing needs. 

Barratt David Wilson Homes recognises the need for new affordable homes in Burnham-on-Crouch and the wider Maldon district. As such, 40% of the homes delivered will be affordable, comprising both social rent and shared ownership properties.

Land for Employment Use

As part of the proposal, the existing allocated employment land to the south of the Corinthian Place development will be retained. It will be easily accessible via safe, walkable routes and also via the existing vehicular access from Springfield Road.

Access and transport

The development is within walking distance of Burnham-on-Crouch, and its accessible location is complemented by plans for a walkable neighbourhood where pedestrians and cyclists are prioritised. Additionally, the walking and cycling routes proposed throughout the development will encourage active travel.

Access to the residential development will be from Endeavour Way, off Maldon Road, via two new vehicular routes. In addition, various pedestrian and cycle connections will be provided from the new development to surrounding routes.

Pedestrian and cycle connections within the retained employment land will link the proposed residential development to the wider network, providing access further east across the site and into Burnham-on-Crouch town centre via existing routes.

Sustainability 

The scheme is landscape-led with a priority of including widespread tree planting and biodiversity enhancements. 

Barratt David Wilson Homes is the nation’s leading national sustainable housebuilder. The development has been designed to be climate adaptable, and the homes will incorporate sustainable design features with a focus on energy and water efficiency. The dwellings will be highly energy efficient, adopting a fabric first approach and with a specification to meet latest building regulations and Future Homes Standards.

 

Benefits of the proposals include: 

  • Up to 360 high-quality new homes, delivered across 2 phases. 
  • Energy-efficient, sustainably designed homes. 
  • Access to the new residential development via Endeavour Way. 
  • Development in a highly sustainable location. 
  • A mixture of housing types ranging from 1-5 bedroom homes. 
  • Up to 40% Affordable homes, helping to meet Maldon's housing needs. 
  • Enhanced connectivity through new walking and cycling routes. 
  • Extensive landscaping, including tree planting and biodiversity improvements. 
  • Retention of existing allocated employment use. 

Benefits of the proposals include: 

  • Up to 360 high-quality new homes, delivered across 2 phases. 
  • Energy-efficient, sustainably designed homes. 
  • Access to the new residential development via Endeavour Way. 
  • Development in a highly sustainable location. 
  • A mixture of housing types ranging from 1-5 bedroom homes. 
  • Up to 40% Affordable homes, helping to meet Maldon's housing needs. 
  • Enhanced connectivity through new walking and cycling routes. 
  • Extensive landscaping, including tree planting and biodiversity improvements. 
  • Retention of existing allocated employment use. 

The Planning Process

We intent to submit a hybrid planning application to Maldon District Council once we have reviewed the responses to this consultation and made any required updates to the proposals.

The proposals has sought to respond to the recommendations of a number of technical assessments which are ongoing and include the following: 

Landscape and Visual Impact

A Landscape and Visual Assessment is being undertaken in accordance with the methodology compliant with the Landscape Institute. The layout of the proposals has been informed by an assessment of landscape and visual sensitivities and the proposed design aims to minimise effects on visual amenity and landscape character and will deliver notable improvements through new landscaping wherever possible. 

Ecology

An assessment of the site’s ecological sensitivity has been undertaken. The layout of the site and the proposed landscape planting includes measures that will notably enhance local biodiversity, as well as delivering new habitats through tree and hedgerow planting. 

Cultural Heritage

An assessment is being undertaken to understand the potential impacts on above and below ground heritage assets as well as the need for any further investigative work in consultation with the Essex County Archaeologist.

Transport and Access

Barratt David Wilson Homes are working with Essex County Council as the Highway Authority to ensure that the surrounding road network can accommodate the additional traffic generated from the development. 

Flooding and Drainage

The proposals are located within Flood Zone 1, the area at the lowest risk of flooding. Drainage has been a key consideration in the design process, with sustainable drainage systems proposed in the form of attenuation basins, which also create an attractive landscape while managing surface water runoff.

Infrastructure

Any development will facilitate sustainable growth with financial contributions towards health, education, and highways. With the money provided by this development, the NHS and the Local Education Authority will be able to spend money on the facilities that local people need.

Barratt David Wilson Homes are working with Maldon District Council, we well as Essex County Council to identify the size of contributions required.

The Planning Process

We intent to submit a hybrid planning application to Maldon District Council once we have reviewed the responses to this consultation and made any required updates to the proposals.

The proposals has sought to respond to the recommendations of a number of technical assessments which are ongoing and include the following: 

Landscape and Visual Impact

A Landscape and Visual Assessment is being undertaken in accordance with the methodology compliant with the Landscape Institute. The layout of the proposals has been informed by an assessment of landscape and visual sensitivities and the proposed design aims to minimise effects on visual amenity and landscape character and will deliver notable improvements through new landscaping wherever possible. 

Ecology

An assessment of the site’s ecological sensitivity has been undertaken. The layout of the site and the proposed landscape planting includes measures that will notably enhance local biodiversity, as well as delivering new habitats through tree and hedgerow planting. 

Cultural Heritage

An assessment is being undertaken to understand the potential impacts on above and below ground heritage assets as well as the need for any further investigative work in consultation with the Essex County Archaeologist.

Transport and Access

Barratt David Wilson Homes are working with Essex County Council as the Highway Authority to ensure that the surrounding road network can accommodate the additional traffic generated from the development. 

Flooding and Drainage

The proposals are located within Flood Zone 1, the area at the lowest risk of flooding. Drainage has been a key consideration in the design process, with sustainable drainage systems proposed in the form of attenuation basins, which also create an attractive landscape while managing surface water runoff.

Infrastructure

Any development will facilitate sustainable growth with financial contributions towards health, education, and highways. With the money provided by this development, the NHS and the Local Education Authority will be able to spend money on the facilities that local people need.

Barratt David Wilson Homes are working with Maldon District Council, we well as Essex County Council to identify the size of contributions required.

Barratt David Wilson Homes is committed to working with the local community and as part of their process to prepare the emerging proposal for the site, they are keen to hear your views. We encourage feedback to help influence the design of the proposals. 

Please direct your comments on the draft proposals to our consultation email address at: info@lanpro.co.uk, by midnight on 28th November 2025, quoting project reference: 5986, or write to us at: 

Land West of Burnham-on-Crouch, Lanpro, 120 Moorgate, London, EC2M 6UR

You will have further opportunity to comment on the proposals once the planning application is submitted to Maldon District Council. We will continue to keep local residents updated with the progress of the application. 

Barratt David Wilson Homes is committed to working with the local community and as part of their process to prepare the emerging proposal for the site, they are keen to hear your views. We encourage feedback to help influence the design of the proposals. 

Please direct your comments on the draft proposals to our consultation email address at: info@lanpro.co.uk, by midnight on 28th November 2025, quoting project reference: 5986, or write to us at: 

Land West of Burnham-on-Crouch, Lanpro, 120 Moorgate, London, EC2M 6UR

You will have further opportunity to comment on the proposals once the planning application is submitted to Maldon District Council. We will continue to keep local residents updated with the progress of the application.